
Gemütliche Unterkunft
Zweckmässige Einrichtung mit 42 Schlafplätzen, geräumigem Saal und vielem mehr.

Voll ausgestatte Küche
Moderne Küche mit allem für die Verpflegung Ihrer Gruppe.

Naturnahe Umgebung
Idyllische Lage im Wald lädt zu Outdoor-Aktivitäten ein

Ideal für Gruppen
Optimal geeignet für Schulklassen, Vereine, Familienfeiern und diverse weitere Anlässe
Ein Ort im Grünen
Im Pfadiheim Schneggebödeli findest du mehr als nur ein Dach über dem Kopf. Hier entsteht Gemeinschaft. Egal ob Lager, Jubiläum, Geburtstag oder Teamevent: Umgeben von Natur, Feuerknistern und Sternenhimmel wird aus deinem Anlass ein Erlebnis, das bleibt. Ein Ort zum Lachen, Staunen und Zusammensein. Echt, herzlich und unvergesslich.


… wo Erinnerungen wachsen
Für Gruppenunterkünfte, Seminare, Präsentationen, Retreats, Lager oder Feste. Das Pfadiheim bietet Raum für alle Wünsche.
Ausgestattet mit Gemeinschaftsraum inklusive Leinwand & Beamer, moderner Gruppenküche, Schlafräumen und grossflächigem Grünraum rundum.
Galerie
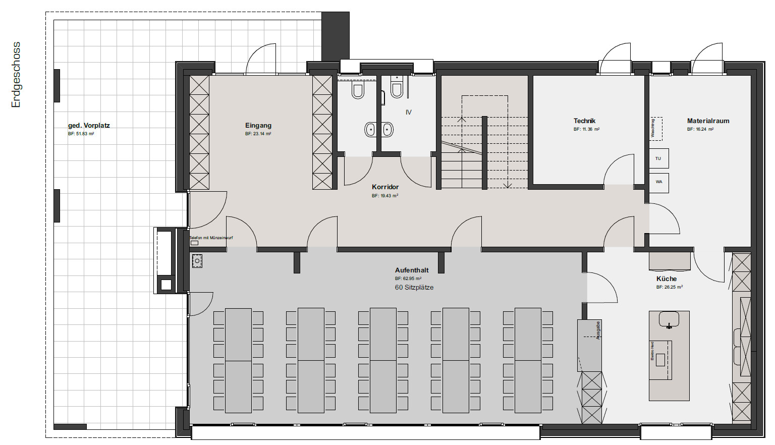
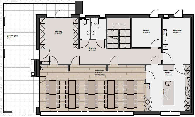
Grundriss
Untergeschoss


Obergeschoss
Ausstattung
Schlafräume
- 3 Schlafräume à 12 Plätze
- 1 Schlafraum à 6 Plätze mit separatem Badezimmer
- Matratzen & Kissen
inkl. Bezug
Aufenthaltsraum
- Tischgarnituren für 40 Pers.
- Geschirr für 60 Pers.
- Beamer + Leinwand
- Schwedenofen
- Sisal-Wände
(als Pinnwand nutzbar)
Sanitäre Anlagen
- 2 WCs im EG (rollstuhlgängig)
- 4 WCs im OG
- 2×2 Duschen im OG
Küche
- 2 Kochherde mit insgesamt 8 Kochfeldern
- 2 Backofen
- Gastro-Geschirrspüler
- Kühlschrank
- Tiefkühler
Aussenbereich
- gedeckter Vorplatz
- 7 Festbankgarnituren
- Grill inkl. Rost
- Arena mit Feuerschale
Technik
- WLAN
- Festnetz
- Brandmeldeanlage
Weiteres
- Gruppenraum
- Flipchart
- Whiteboard
- Sitzungsraum (auf Anfrage)
- grosser Sitzungstisch
- Materialraum
- 2 Waschmaschinen
- 2 Trockner
- grosses Regal
- geräumige Garderobe
(inkl. 2 Stehtische)
Lage & Erreichbarkeit
Mit Bahn und Bus
- Gehzeit vom Bahnhof Buchs SG ca. 30 Minuten
- Vom Bahnhof Buchs mit dem Bus zur Haltestelle Buchs SG, Rathaus. Von dort beträgt der Fussweg zum Pfadiheim ca. 20 Minuten.
- Alternativ mit dem Bus zur Haltestelle Buchs SG, Mühle Altendorf (reduzierter Betrieb) und von dort beträgt der Fussmarsch noch ca. 10 Minuten.
Mit dem Auto
- Anfahrt über die Autobahnausfahrt A13 Buchs.
- Die direkte Zufahrt zum Heim ist für maximal 2 Fahrzeuge erlaubt. Achtung: Es gibt keinen Winterdienst.
- Parkmöglichkeiten:
- Parkplatz Schneggen (5 Min. Fussweg)
- Mühle Altendorf (10 Min. Fussweg)
- Marktplatz Werdenberg (30 Min. Fussweg)
Die genauen GPS-Koordinaten des Pfadiheims sind: Breitengrad 47.159965, Längengrad 9.466144 (Swisstopo).
Häufig gestellte Fragen
Das Pfadiheim ist im Erdgeschoss barrierefrei. Der Aufenthaltsraum, WC und die Küche sind im Erdgeschoss zugänglich.
Die Schlafsäle sind leider nicht barrierefrei und nur über eine Treppe zugänglich.
Klar, auf der Wiese vor dem Pfadiheim können auch Zelte aufgeschlagen werden.
Mit den verfügbaren Festgarnituren (Tisch und Bänke) lassen sich diverse Anwendungsbereiche abdecken. Des Weiteren hat es:
- Überdachter Aussenbereich mit Feuerstelle für behaglich Abende im Freien
- Grünfläche vor dem Haus für Spiel, Sport und Gruppenzelte (ca. 200m2)
- Aussenarena mit Feuerschale für atmosphärische Abendstunden am Feuer
- Gut begehbarer Wald ideal nutzbar für Spiele und Workshops
Mit etwas Distanz verbunden sind der Zurich vitaparcours, der Sinnespfad und das Naherholungsgebiet Egeten. Weitere Inspirationen unter Werdenberg Tourismus.
Ja, die Nebenkosten sind im Preis inkludiert. Dazu zählen:
- Strom
- Wasser
- Internet
- Telefon
- Reinigungsmaterial (inkl. Abfallsäcke)
- Holz
Die Küche ist ideal für Gruppen geeignet. Ab Ankunft lässt es sich direkt loslegen. Eine detaillierte Inventarliste findet sich hier. Bitte beachtet, dass kein Grundstock an Gewürzen vorhanden ist.
Sie ist auch für Cateringorganisationen nutzbar. Eine Zufahrt direkt zum Haus ist möglich.
Das Pfadiheim verfügt im Aufenthaltsraum über einen Beamer mit Leinwand. Ebenfalls stehen ein Flipchart und ein Whiteboard zur Verfügung.
Ein gemütliches Ambiente lässt sich mit dem Schwedenofen erzeugen.
- Übernachtungen: bis 42 Personen
- Mit Nutzung des Aussenbereichs: bis ca. 100 Personen
- Tages- und Eventbetrieb im Haus: bis 60 Personen
Nein, das Pfadiheim hat keine Postadresse, beziehungsweise die Post liefert nicht ins Pfadiheim. Pakete können aber postlagernd an die Postfiliale in Buchs geschickt werden und während des Lagers abgeholt werden.
Pakete abzuholen, liegt in der Verantwortung der Lagerorganisation. Die Post entsorgt jedes Jahr Pakete, die nicht abgeholt wurden.















